Office notarial de Plabennec

SCP Normand Hélène

Office notarial de Plabennec

«Mon notaire rend mes projets plus sûrs»

Accueil > Detail
98 m2
6 Pièces

Plabennec

302 000 €
+ Négo 7 200 €
Surface terrain : 480 m2
Ref : PLAB-ROSES
4 chambres

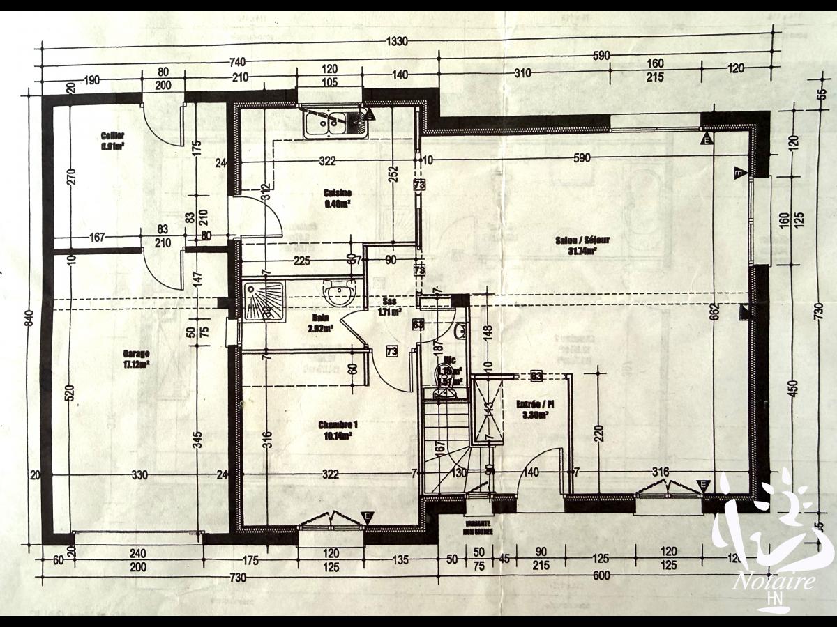
L' office notarial de Plabennec ( Me NORMAND Hélène ) , vous propose cette contemporaine édifiée en 2011, 6 pièces, de près de 100 m2 avec en plus un grenier de 14 m2 facilement adaptable en une pièce de vie, sur un terrain clos de 480 m2.

Cette agréable maison permet de vivre facilement au rez-de-chaussée avec sa chambre, sa douche et wc séparés ainsi que toutes les pièces de vie.
L'accès à la terrasse de 40 m2 exposée plein sud , se fait par la baie vitrée de la salle, sur laquelle il est bien reposant de lire un livre quand le soleil couchant nous caresse de ses rayons bien utiles en début de soirée.

A l'étage, une salle de bain comprenant baignoire et douche, wc, lavabo, 3 chambres dont une qui s'ouvre sur le grenier de 14 m2 au-dessus de 1,80 m de hauteur.

Bien isolée, cette bâtisse est classée en C avec un faible coût en énergie.

Diagnostics extrêmement rares, entièrement vierge :
- Parasitaire : Il n'a pas été repéré d'indice de présence d'autres agents de dégradation biologique.
- Gaz : l'installation ne comporte aucune anomalie.
- Electricité : L'installation intérieure d'électricité ne comporte aucune anomalie.

A cela vous rajoutez un assainissement au tout à l'égout qui est conforme, prouvant ainsi le parfait entretien de cette maison par la propriétaire.

Chauffage et production d'eau chaude sanitaire au gaz.
Vmc auto réglable
Enrobé de 2016
Porte de garage et entrée de 2024
Taxe foncière : 950 €
Gaz : 700 €
Electricité : 350 €

© SCP Normal Hélène